Two Rivers Development, LLC

Retirement Homes
Home Up White Pine III Ponderosa I Pondersoa II

                                         Pine Tree Hollow artist rendition

Pine Tree Hollow is a retirement community for active seniors located in beautiful Thompson Falls, Montana.  Please visit "Our Community" page for detailed information on Thompson Falls and the surrounding area.

Located within the city limits , the complex sits on 4.6 scenic acres at the east end of the town.  All buildings are single story duplexes, clustered around a beautiful park co-owned by the residents.  Three two-bedroom models are available, with the largest model featuring an office/study in addition to the two bedrooms.  All boast vaulted ceilings in the main living areas, beautiful hardwood cabinets and attached garages.  The buildings are designed for high-efficiency and low maintenance.  All include generous standard features with a long list of upgrade options to customize your home, and are handicap-friendly.  Front yard landscaping and a small back yard are included with each unit.  A homeowners association manages landscaping and road maintenance details. The local Senior Citizen Center is right next door to the complex.  The town has a socially active senior community.  The center sponsors many activities and several meals per week.

We offer three two-bedroom floor plans, the largest featuring an office  All are single story duplex units with handicap-friendly features.  Each unit is loaded with standard features, with many upgrade features available.  Prices start at $159,000.

Click on any picture or floor plan to view a larger image.     

 

   

 

    White Pine III                                                                                                         

White Pine model    

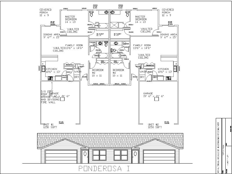
 Ponderosa I

 Ponderosa I model       

Ponderosa II                                                                

  Ponderosa II Model               

click for enlarged floor plan White Pine III      

hyperlink to floor plan

 click for enlarged floor plan Ponderosa I              click for enlarged floor plan Ponderosa II

    hyperlink to floor plan                               hyperlink to floor plan                                          

 

 

 Site plan

 

  Retirement Homes   Our Community    About the Developer    Contact Information   

Copyright © 2007 Two Rivers Development, LLC. All rights reserved.