|

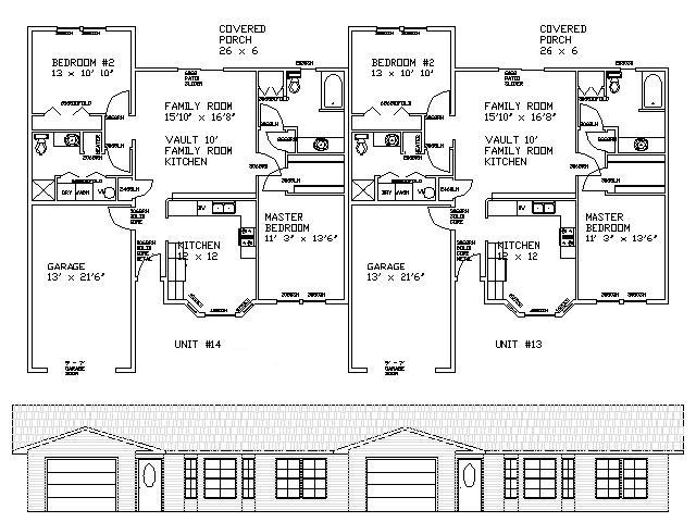
WHITE PINE III
Approximately 1,500 square feet
2 Bedroom
2 Baths
Large Family room
Single car garage with 9’ by 7’ door
STANDARD FEATURES
Exterior
- Low-maintenance vinyl siding with contrasting trim
- 30 year composite shingles
- 6 inch exterior frame construction
- R-19 wall insulation
- R-30 ceiling insulation
- Covered patio
- Double pane Energy Star windows
- Single or double car garage (1)
- Metal 7 foot tall door with electric garage door opener
- Concrete apron in front of garage
- Standard front yard landscaping (2)
- Double firewall insulated common wall between duplex
units
Interior
- Vaulted ceilings in Family room/kitchen/dining areas
- Off-white eggshell latex wall paint
- Plush carpet in neutral colors in family room
and bedrooms
- Vinyl flooring in
kitchen, baths and laundry
- Ceramic tile entry
- Ceiling fans in Master bedroom and Family room
- High efficiency central gas heat with refrigerated air
conditioning
Kitchen and Bath
- Formica countertops
- Hardwood cabinets with melamine shelving
- Four burner electric range
- Built in Dishwasher
- Porcelain sinks with standard chrome fixtures
- Tub in Master bath
(1) White Pine features single car garage
(2) Standard front landscaping will be defined in master
site plan and may vary by unit
|